Das persönliche
Gespräch ist uns wichtig!

Kontaktieren Sie uns und vereinbaren
Sie noch heute einen Termin.

Alle Vorsorgewohnungen auf einen Blick.
Zur WOHNUNGS-SUCHE

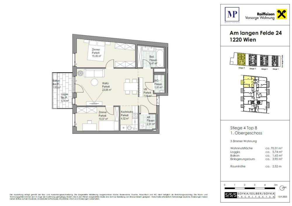
Am Langen Felde 24, 1220 Wien
Stiege 4 - Top 4/08

Stockwerk:
1
Wohnungsgröße (m²):
70,31
Zimmer:
3
Balkon (m²):
1,65
Loggia (m²):
5,74
geplante Fertigstellung:
fertiggestellt


1
3
70,31 m²
1,65 m²
5,74 m²
Ausgestellt am 2022-03-31, Jahrgang 2014, HWB Klasse A (25,00)


€ 484.300
€ 32.490

Gesamtkaufpreis:
€ 516.790
Ausstattung gemäß Baubeschreibung, die dargestellte Möblierung - ausgenommen Küche, Badewanne, Waschtisch und WC - ist nicht Bestandteil des Lieferumfanges und dient nur als Einrichtungsvorschlag. Alle dargestellten Gegenstände haben symbolhaften Charakter. Druck- und Satzfehler, sowie Irrtümer und baulich bedingte Änderungen vorbehalten. Die Wohnungsgrößen sind Circa-Angaben und können sich durch die Detailplanung geringfügig ändern. Maßgeblich ist in jedem Fall der Kaufvertrag.

Eigentumswohnungen

Top Ebene Räume Nutzfäche Preis exkl.
PKW-Stellplatz
PKW-Stellplatz Gesamtpreis inkl.
PKW-Stellplatz
Stiege 3 - Top 3/10 1 2 ~ 57 m² € 420.100** € 32.490** € 452.590** FREI
Stiege 4 - Top 4/20 3 2 ~ 48 m² € 362.000** € 362.000** FREI
Stiege 4 - Top 4/10 1 3 ~ 77 m² € 548.200** € 32.490** € 580.690** FREI
Stiege 3 - Top 3/07 1 1 ~ 41 m² € 310.700** € 310.700** FREI
Stiege 4 - Top 4/04 3 ~ 63 m² € 462.600** € 32.490** € 495.090** FREI
Stiege 3 - Top 3/19 2 2 ~ 59 m² € 414.000** € 32.490** € 446.490** FREI
Stiege 2 - Top 2/12 1 2 ~ 62 m² € 451.200** € 32.490** € 483.690** FREI
Stiege 3 - Top 3/06 1 ~ 42 m² € 320.300** € 320.300** FREI
Stiege 3 - Top 3/17 2 2 ~ 55 m² € 388.000** € 32.490** € 420.490** FREI
Stiege 3 - Top 3/22 3 4 ~ 118 m² € 875.200** € 32.490** € 907.690** FREI
Stiege 3 - Top 3/13 1 2 ~ 48 m² € 348.600** € 348.600** FREI
Stiege 2 - Top 2/01 1 ~ 38 m² € 295.300** € 295.300** FREI
Stiege 2 - Top 2/05 3 ~ 73 m² € 528.200** € 32.490** € 560.690** FREI
Stiege 2 - Top 2/06 1 ~ 42 m² € 315.400** € 315.400** FREI
Stiege 2 - Top 2/23 3 2 ~ 71 m² € 521.000** € 32.490** € 553.490** FREI
Stiege 3 - Top 3/04 2 ~ 57 m² € 424.000** € 32.490** € 456.490** FREI
Stiege 2 - Top 2/20 2 2 ~ 49 m² € 345.000** € 345.000** FREI
Stiege 3 - Top 3/18 2 3 ~ 74 m² € 509.000** € 32.490** € 541.490** FREI
Stiege 4 - Top 4/11 1 2 ~ 61 m² € 448.300** € 32.490** € 480.790** FREI
Stiege 4 - Top 4/17 2 3 ~ 73 m² € 508.000** € 32.490** € 540.490** FREI
Stiege 4 - Top 4/21 3 4 ~ 117 m² € 868.000** € 32.490** € 900.490** FREI
Stiege 3 - Top 3/01 1 ~ 41 m² € 315.900** € 315.900** FREI
Stiege 3 - Top 3/09 1 3 ~ 64 m² € 454.900** € 32.490** € 487.390** FREI
Stiege 3 - Top 3/12 1 2 ~ 62 m² € 456.300** € 32.490** € 488.790** FREI
Stiege 3 - Top 3/02 2 ~ 53 m² € 390.200** € 32.490** € 422.690** FREI
Stiege 4 - Top 4/01 1 ~ 41 m² € 311.300** € 311.300** FREI
Stiege 3 - Top 3/23 3 2 ~ 71 m² € 513.800** € 32.490** € 546.290** FREI
Stiege 2 - Top 2/22 3 4 ~ 105 m² € 798.000** € 32.490** € 830.490** FREI
Stiege 4 - Top 4/09 1 3 ~ 63 m² € 463.000** € 32.490** € 495.490** FREI
Stiege 3 - Top 3/03 3 ~ 64 m² € 463.200** € 32.490** € 495.690** FREI
Stiege 4 - Top 4/22 3 2 ~ 67 m² € 492.700** € 32.490** € 525.190** FREI
Stiege 4 - Top 4/18 2 2 ~ 57 m² € 405.000** € 32.490** € 437.490** FREI
Stiege 4 - Top 4/14 2 2 ~ 50 m² VERKAUFT
Stiege 3 - Top 3/16 2 2 ~ 61 m² VERKAUFT
Stiege 2 - Top 2/03 2 ~ 53 m² VERKAUFT
Stiege 4 - Top 4/05 3 ~ 77 m² VERKAUFT
Stiege 2 - Top 2/2 2 ~ 51 m² VERKAUFT
Stiege 4 - Top 4/12 1 1 ~ 45 m² VERKAUFT
Stiege 2 - Top 2/18 2 3 ~ 69 m² VERKAUFT
Stiege 4 - Top 4/06 1 1 ~ 41 m² VERKAUFT
Stiege 2 - Top 2/17 2 2 ~ 45 m² VERKAUFT
Stiege 2 - Top 2/07 1 1 ~ 38 m² VERKAUFT
Stiege 3 - Top 3/11 1 3 ~ 77 m² VERKAUFT
Stiege 2 - Top 2/16 2 2 ~ 50 m² VERKAUFT
Stiege 4 - Top 4/03 3 ~ 69 m² VERKAUFT
Stiege 2 - Top 2/21 3 1 ~ 37 m² VERKAUFT
Stiege 2 - Top 2/08 1 2 ~ 51 m² VERKAUFT
Stiege 3 - Top 3/05 3 ~ 77 m² VERKAUFT
Stiege 2 - Top 2/19 2 2 ~ 59 m² VERKAUFT
Stiege 2 - Top 2/04 2 ~ 47 m² VERKAUFT
Stiege 2 - Top 2/10 1 2 ~ 47 m² VERKAUFT
Stiege 4 - Top 4/08 1 3 ~ 70 m² VERKAUFT
Stiege 4 - Top 4/07 1 2 ~ 53 m² VERKAUFT
Stiege 2 - Top 2/14 2 1 ~ 36 m² VERKAUFT
Stiege 4 - Top 4/15 2 3 ~ 67 m² VERKAUFT
Stiege 4 - Top 4/16 2 2 ~ 60 m² VERKAUFT
Stiege 3 - Top 3/15 2 2 ~ 50 m² VERKAUFT
Stiege 4 - Top 4/02 2 ~ 53 m² VERKAUFT
Stiege 3 - Top 3/14 2 1 ~ 39 m² VERKAUFT
Stiege 4 - Top 4/13 2 1 ~ 39 m² VERKAUFT
Stiege 2 - Top 2/15 2 2 ~ 49 m² VERKAUFT
Stiege 2 - Top 2/11 1 3 ~ 73 m² VERKAUFT
Stiege 3 - Top 3/08 1 2 ~ 53 m² VERKAUFT
Stiege 2 - Top 2/09 1 2 ~ 53 m² VERKAUFT
Stiege 2 - Top 2/13 1 2 ~ 51 m² VERKAUFT
Stiege 3 - Top 3/21 3 1 ~ 40 m² VERKAUFT
Stiege 4 - Top 4/19 2 1 ~ 44 m² VERKAUFT
Stiege 3 - Top 3/20 2 2 ~ 47 m² VERKAUFT
*) Preis inkl. Küche exkl. Ust.
**) Fixkaufpreis inkl. Ust.

Vorsorgewohnungen

Top Ebene Räume Nutzfäche Preis exkl.
PKW-Stellplatz
PKW-Stellplatz Gesamtpreis inkl.
PKW-Stellplatz
Stiege 3 - Top 3/01 1 ~ 41 m² € 277.200* € 277.200* FREI
Stiege 2 - Top 2/06 1 ~ 42 m² € 276.700* € 276.700* FREI
Stiege 3 - Top 3/04 2 ~ 57 m² € 372.800* € 28.500*€ 401.300* FREI
Stiege 2 - Top 2/05 3 ~ 73 m² € 464.300* € 28.500*€ 492.800* FREI
Stiege 3 - Top 3/17 2 2 ~ 55 m² € 340.500* € 28.500*€ 369.000* FREI
Stiege 4 - Top 4/22 3 2 ~ 67 m² € 433.100* € 28.500*€ 461.600* FREI
Stiege 4 - Top 4/17 2 3 ~ 73 m² € 446.000* € 28.500*€ 474.500* FREI
Stiege 3 - Top 3/06 1 ~ 42 m² € 281.000* € 281.000* FREI
Stiege 3 - Top 3/13 1 2 ~ 48 m² € 305.800* € 305.800* FREI
Stiege 3 - Top 3/22 3 4 ~ 118 m² € 768.600* € 28.500*€ 797.100* FREI
Stiege 3 - Top 3/19 2 2 ~ 59 m² € 363.600* € 28.500*€ 392.100* FREI
Stiege 3 - Top 3/03 3 ~ 64 m² € 407.300* € 28.500*€ 435.800* FREI
Stiege 3 - Top 3/12 1 2 ~ 62 m² € 401.200* € 28.500*€ 429.700* FREI
Stiege 4 - Top 4/18 2 2 ~ 57 m² € 356.200* € 28.500*€ 384.700* FREI
Stiege 3 - Top 3/07 1 1 ~ 41 m² € 272.600* € 272.600* FREI
Stiege 4 - Top 4/21 3 4 ~ 117 m² € 762.400* € 28.500*€ 790.900* FREI
Stiege 3 - Top 3/10 1 2 ~ 57 m² € 369.500* € 28.500*€ 398.000* FREI
Stiege 3 - Top 3/02 2 ~ 53 m² € 343.200* € 28.500*€ 371.700* FREI
Stiege 2 - Top 2/01 1 ~ 38 m² € 259.000* € 259.000* FREI
Stiege 4 - Top 4/10 1 3 ~ 77 m² € 481.800* € 28.500*€ 510.300* FREI
Stiege 4 - Top 4/09 1 3 ~ 63 m² € 394.900* € 28.500*€ 423.400* FREI
Stiege 2 - Top 2/22 3 4 ~ 105 m² € 700.300* € 28.500*€ 728.800* FREI
Stiege 3 - Top 3/9 1 3 ~ 64 m² € 399.900* € 28.500*€ 428.400* FREI
Stiege 3 - Top 3/18 2 3 ~ 74 m² € 447.000* € 28.500*€ 475.500* FREI
Stiege 4 - Top 4/20 3 2 ~ 48 m² € 317.000* € 317.000* FREI
Stiege 4 - Top 4/11 1 2 ~ 61 m² € 394.200* € 28.500*€ 422.700* FREI
Stiege 4 - Top 4/04 3 ~ 63 m² € 406.700* € 28.500*€ 435.200* FREI
Stiege 2 - Top 2/20 2 2 ~ 49 m² € 302.500* € 302.500* FREI
Stiege 4 - Top 4/01 1 ~ 41 m² € 273.100* € 273.100* FREI
Stiege 2 - Top 2/12 1 2 ~ 62 m² € 396.700* € 28.500*€ 425.200* FREI
Stiege 3 - Top 3/23 3 2 ~ 71 m² € 451.700* € 28.500*€ 480.200* FREI
Stiege 2 - Top 2/23 3 2 ~ 71 m² € 457.900* € 28.500*€ 486.400* FREI
Stiege 3 - Top 3/08 1 2 ~ 53 m² VERKAUFT
Stiege 2 - Top 2/15 2 2 ~ 49 m² VERKAUFT
Stiege 2 - Top 2/17 2 2 ~ 45 m² VERKAUFT
Stiege 2 - Top 2/14 2 1 ~ 36 m² VERKAUFT
Stiege 3 - Top 3/20 2 2 ~ 47 m² VERKAUFT
Stiege 3 - Top 3/11 1 3 ~ 77 m² VERKAUFT
Stiege 2 - Top 2/08 1 2 ~ 51 m² VERKAUFT
Stiege 4 - Top 4/08 1 3 ~ 70 m² VERKAUFT
Stiege 4 - Top 4/02 2 ~ 53 m² VERKAUFT
Stiege 2 - Top 2/13 1 2 ~ 51 m² VERKAUFT
Stiege 4 - Top 4/05 3 ~ 77 m² VERKAUFT
Stiege 2 - Top 2/03 2 ~ 53 m² VERKAUFT
Stiege 2 - Top 2/18 2 3 ~ 69 m² VERKAUFT
Stiege 2 - Top 2/19 2 2 ~ 59 m² VERKAUFT
Stiege 3 - Top 3/14 2 1 ~ 39 m² VERKAUFT
Stiege 4 - Top 4/15 2 3 ~ 67 m² VERKAUFT
Stiege 4 - Top 4/13 2 1 ~ 39 m² VERKAUFT
Stiege 2 - Top 2/07 1 1 ~ 38 m² VERKAUFT
Stiege 3 - Top 3/16 2 2 ~ 61 m² VERKAUFT
Stiege 2 - Top 2/21 3 1 ~ 37 m² VERKAUFT
Stiege 3 - Top 3/21 3 1 ~ 40 m² VERKAUFT
Stiege 2 - Top 2/10 1 2 ~ 47 m² VERKAUFT
Stiege 3 - Top 3/15 2 2 ~ 50 m² VERKAUFT
Stiege 2 - Top 2/16 2 2 ~ 50 m² VERKAUFT
Stiege 2 - Top 2/04 2 ~ 47 m² VERKAUFT
Stiege 4 - Top 4/06 1 1 ~ 41 m² VERKAUFT
Stiege 4 - Top 4/03 3 ~ 69 m² VERKAUFT
Stiege 4 - Top 4/14 2 2 ~ 50 m² VERKAUFT
Stiege 2 - Top 2/02 2 ~ 51 m² VERKAUFT
Stiege 4 - Top 4/19 2 1 ~ 44 m² VERKAUFT
Stiege 3 - Top 3/05 3 ~ 77 m² VERKAUFT
Stiege 4 - Top 4/07 1 2 ~ 53 m² VERKAUFT
Stiege 4 - Top 4/12 1 1 ~ 45 m² VERKAUFT
Stiege 2 - Top 2/09 1 2 ~ 53 m² VERKAUFT
Stiege 2 - Top 2/11 1 3 ~ 73 m² VERKAUFT
Stiege 4 - Top 4/16 2 2 ~ 60 m² VERKAUFT
*) Preis inkl. Küche exkl. Ust.
**) Fixkaufpreis inkl. Ust.

Investment ohne Nervenkitzel!

...und das seit über 19 Jahren.


Mit über 1.400 verkauften Vorsorgewohnungen ist die Raiffeisen Vorsorge Wohnung GmbH seit über 19 Jahren die richtige Adresse für Ihr Investment ohne Nervenkitzel! Die perfekte Vorsorgewohnung braucht die beste Betreuung: Mit unserem Mietenpool (Rundum-Service-Paket) ist Ihr Kapital in sicheren Händen - ein sicherer Hafen für Ihr Kapital!

Privatsphäre-Einstellungen
Wir nehmen Ihre Privatspähre ernst. Bitte entscheiden Sie, ob Sie Cookies annehmen oder ablehnen wollen.
Google Tag Manager (technisch notwendige Cookies)
Facebook Pixel (Marketing-Cookies)
Google Analytics (Marketing-Cookies)