Das persönliche
Gespräch ist uns wichtig!

Kontaktieren Sie uns und vereinbaren
Sie noch heute einen Termin.

Alle Vorsorgewohnungen auf einen Blick.
Zur WOHNUNGS-SUCHE

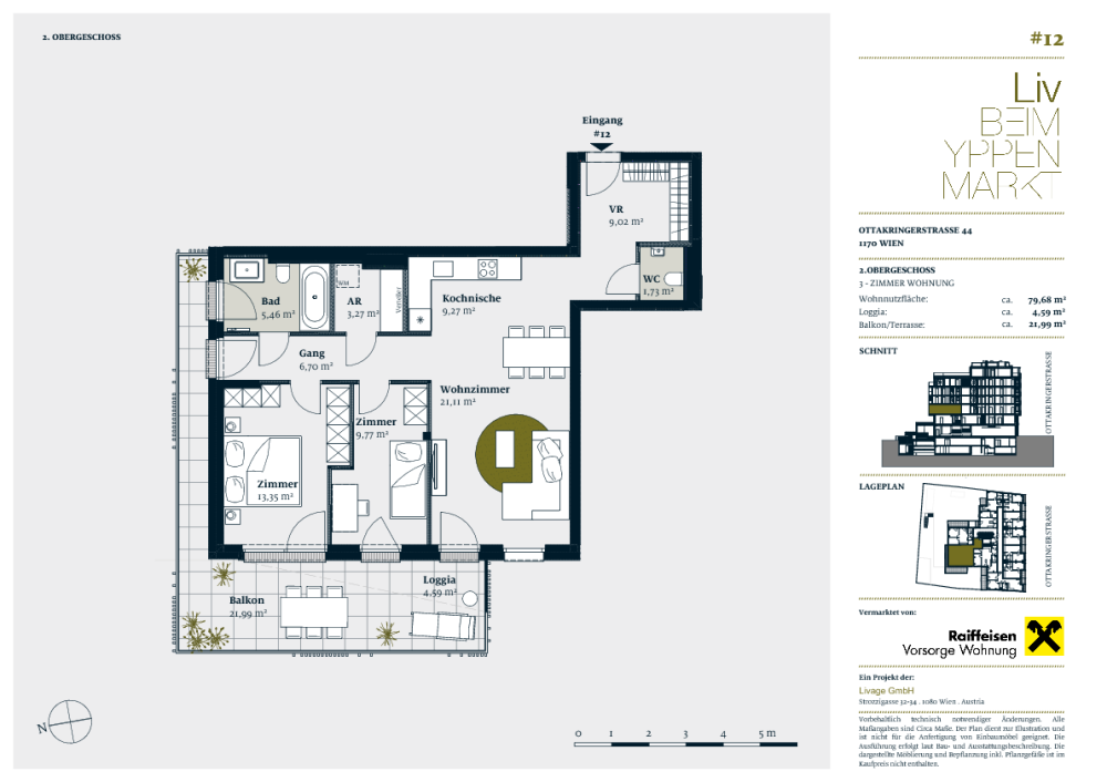
Ottakringer Straße 44, 1170 Wien
Top 12

Stockwerk:
2
Wohnungsgröße (m²):
79,24
Zimmer:
3
Balkon (m²):
21,94
Loggia (m²):
4,64
geplante Fertigstellung:
31.03.2027


2
3
79,24 m²
21,94 m²
4,64 m²


€ 693.500
€ 39.900

Gesamtkaufpreis:
€ 733.400
Ausstattung gemäß Baubeschreibung, die dargestellte Möblierung - ausgenommen Küche, Badewanne, Waschtisch und WC - ist nicht Bestandteil des Lieferumfanges und dient nur als Einrichtungsvorschlag. Alle dargestellten Gegenstände haben symbolhaften Charakter. Druck- und Satzfehler, sowie Irrtümer und baulich bedingte Änderungen vorbehalten. Die Wohnungsgrößen sind Circa-Angaben und können sich durch die Detailplanung geringfügig ändern. Maßgeblich ist in jedem Fall der Kaufvertrag.

Eigentumswohnungen

Top Ebene Räume Nutzfäche Preis exkl.
PKW-Stellplatz
PKW-Stellplatz Gesamtpreis inkl.
PKW-Stellplatz
Top 30 3 2 ~ 40 m² € 332.200** € 332.200** FREI
Top 43 4 3 ~ 63 m² € 577.000** € 39.900** € 616.900** FREI
Top 53 5 3 ~ 64 m² € 527.100** € 527.100** FREI
Top 27 3 2 ~ 41 m² € 336.100** € 336.100** FREI
Top 31 3 2 ~ 41 m² € 333.600** € 333.600** FREI
Top 22 2 3 ~ 68 m² € 542.300** € 542.300** FREI
Top 21 2 3 ~ 63 m² € 559.300** € 559.300** FREI
Top 18 2 2 ~ 41 m² € 330.900** € 330.900** FREI
Top 19 2 2 ~ 40 m² € 329.300** € 329.300** FREI
Top 25 3 2 ~ 37 m² € 297.900** € 297.900** FREI
Top 38 4 2 ~ 41 m² € 339.200** € 339.200** FREI
Top 41 4 2 ~ 40 m² € 335.200** € 335.200** FREI
Top 52 5 3 ~ 63 m² € 558.800** € 558.800** FREI
Top 12 2 3 ~ 79 m² € 693.500** € 39.900** € 733.400** FREI
Top 13 2 3 ~ 53 m² € 493.700** € 493.700** FREI
Top 23 3 3 ~ 79 m² € 700.000** € 39.900** € 739.900** FREI
Top 32 3 3 ~ 63 m² € 573.800** € 39.900** € 613.700** FREI
Top 33 3 3 ~ 68 m² € 553.700** € 39.900** € 593.600** FREI
Top 16 2 2 ~ 41 m² € 332.900** € 332.900** FREI
Top 20 2 2 ~ 41 m² € 330.600** € 330.600** FREI
Top 44 4 3 ~ 68 m² € 557.500** € 39.900** € 597.400** FREI
Top 17 2 2 ~ 40 m² € 329.300** € 329.300** FREI
Top 36 4 2 ~ 37 m² € 300.100** € 300.100** FREI
Top 39 4 2 ~ 40 m² VERKAUFT
Top 50 5 2 ~ 40 m² VERKAUFT
Top 34 4 3 ~ 79 m² VERKAUFT
Top 51 5 2 ~ 41 m² VERKAUFT
Top 40 4 2 ~ 41 m² VERKAUFT
Top 14 2 2 ~ 37 m² VERKAUFT
Top 48 5 2 ~ 40 m² VERKAUFT
Top 37 4 2 ~ 39 m² VERKAUFT
Top 46 5 3 ~ 61 m² VERKAUFT
Top 35 4 3 ~ 54 m² VERKAUFT
Top 47 5 2 ~ 48 m² VERKAUFT
Top 26 3 2 ~ 39 m² VERKAUFT
Top 28 3 2 ~ 40 m² VERKAUFT
Top 29 3 2 ~ 41 m² VERKAUFT
Top 24 3 3 ~ 54 m² VERKAUFT
Top 49 5 2 ~ 41 m² VERKAUFT
Top 15 2 2 ~ 39 m² VERKAUFT
Top 42 4 2 ~ 41 m² VERKAUFT
*) Preis inkl. Küche exkl. Ust.
**) Fixkaufpreis inkl. Ust.

Vorsorgewohnungen

Top Ebene Räume Nutzfäche Preis exkl.
PKW-Stellplatz
PKW-Stellplatz Gesamtpreis inkl.
PKW-Stellplatz
Top 27 3 2 ~ 41 m² € 294.800* € 294.800* FREI
Top 36 4 2 ~ 37 m² € 263.200* € 263.200* FREI
Top 20 2 2 ~ 41 m² € 290.000* € 290.000* FREI
Top 16 2 2 ~ 41 m² € 292.000* € 292.000* FREI
Top 18 2 2 ~ 41 m² € 290.200* € 290.200* FREI
Top 17 2 2 ~ 40 m² € 288.800* € 288.800* FREI
Top 21 2 3 ~ 63 m² € 490.600* € 490.600* FREI
Top 31 3 2 ~ 41 m² € 292.600* € 292.600* FREI
Top 33 3 3 ~ 68 m² € 485.700* € 35.000*€ 520.700* FREI
Top 52 5 3 ~ 63 m² € 490.100* € 490.100* FREI
Top 19 2 2 ~ 40 m² € 288.800* € 288.800* FREI
Top 41 4 2 ~ 40 m² € 294.000* € 294.000* FREI
Top 13 2 3 ~ 53 m² € 433.000* € 433.000* FREI
Top 44 4 3 ~ 68 m² € 489.000* € 35.000*€ 524.000* FREI
Top 30 3 2 ~ 40 m² € 291.400* € 291.400* FREI
Top 22 2 3 ~ 68 m² € 475.700* € 475.700* FREI
Top 12 2 3 ~ 80 m² € 608.300* € 35.000*€ 643.300* FREI
Top 38 4 2 ~ 41 m² € 297.500* € 297.500* FREI
Top 23 3 3 ~ 80 m² € 614.000* € 35.000*€ 649.000* FREI
Top 43 4 3 ~ 63 m² € 506.100* € 35.000*€ 541.100* FREI
Top 32 3 3 ~ 63 m² € 503.300* € 35.000*€ 538.300* FREI
Top 25 3 2 ~ 37 m² € 261.300* € 261.300* FREI
Top 53 5 3 ~ 64 m² € 462.300* € 462.300* FREI
Top 47 5 2 ~ 48 m² VERKAUFT
Top 24 3 3 ~ 54 m² VERKAUFT
Top 49 5 2 ~ 41 m² VERKAUFT
Top 51 5 2 ~ 41 m² VERKAUFT
Top 39 4 2 ~ 40 m² VERKAUFT
Top 50 5 2 ~ 40 m² VERKAUFT
Top 40 4 2 ~ 41 m² VERKAUFT
Top 42 4 2 ~ 41 m² VERKAUFT
Top 29 3 2 ~ 41 m² VERKAUFT
Top 26 3 2 ~ 39 m² VERKAUFT
Top 15 2 2 ~ 39 m² VERKAUFT
Top 35 4 3 ~ 54 m² VERKAUFT
Top 14 2 2 ~ 37 m² VERKAUFT
Top 46 5 3 ~ 61 m² VERKAUFT
Top 34 4 3 ~ 80 m² VERKAUFT
Top 48 5 2 ~ 40 m² VERKAUFT
Top 28 3 2 ~ 40 m² VERKAUFT
Top 37 4 2 ~ 39 m² VERKAUFT
*) Preis inkl. Küche exkl. Ust.
**) Fixkaufpreis inkl. Ust.

Investment ohne Nervenkitzel!

...und das seit über 19 Jahren.


Mit über 1.400 verkauften Vorsorgewohnungen ist die Raiffeisen Vorsorge Wohnung GmbH seit über 19 Jahren die richtige Adresse für Ihr Investment ohne Nervenkitzel! Die perfekte Vorsorgewohnung braucht die beste Betreuung: Mit unserem Mietenpool (Rundum-Service-Paket) ist Ihr Kapital in sicheren Händen - ein sicherer Hafen für Ihr Kapital!

Privatsphäre-Einstellungen
Wir nehmen Ihre Privatspähre ernst. Bitte entscheiden Sie, ob Sie Cookies annehmen oder ablehnen wollen.
Google Tag Manager (technisch notwendige Cookies)
Facebook Pixel (Marketing-Cookies)
Google Analytics (Marketing-Cookies)