Das persönliche
Gespräch ist uns wichtig!
Kontaktieren Sie uns und vereinbaren
Sie noch heute einen Termin.
Alle Mietwohnungen auf einen Blick.
Zur MIETWOHNUNGS-SUCHE
Zu den VORSORGEWOHNUNGEN

Befristung: 5 Jahre
Mietvertragserrichtungsgebühr EUR 349,00
| Mietzins netto | 675,58 € | Mietzins inkl. 10% USt | 743,14 € |
| Betriebskosten netto | 106,24 € | Betriebskosten inkl. 10% USt | 116,86 € |
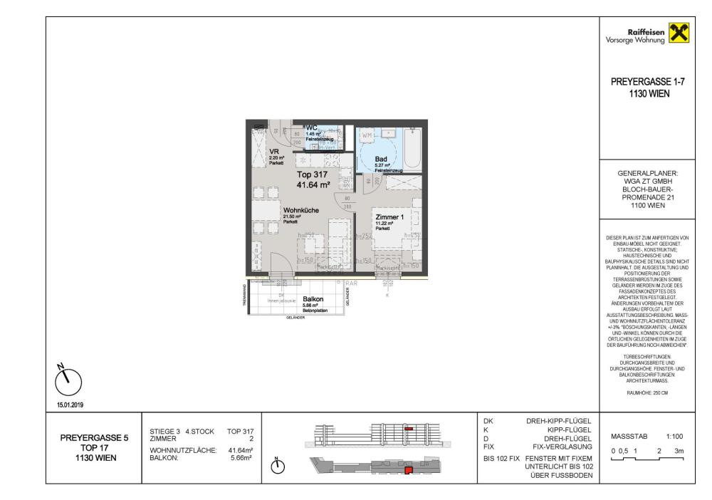
| TOP | EBENE | RÄUME | NUTZFLÄCHE | PREIS | ||
|---|---|---|---|---|---|---|
| Top 17 | 4 | 2 Zimmer | ~ 42 m² | € 860,00* | FREI |